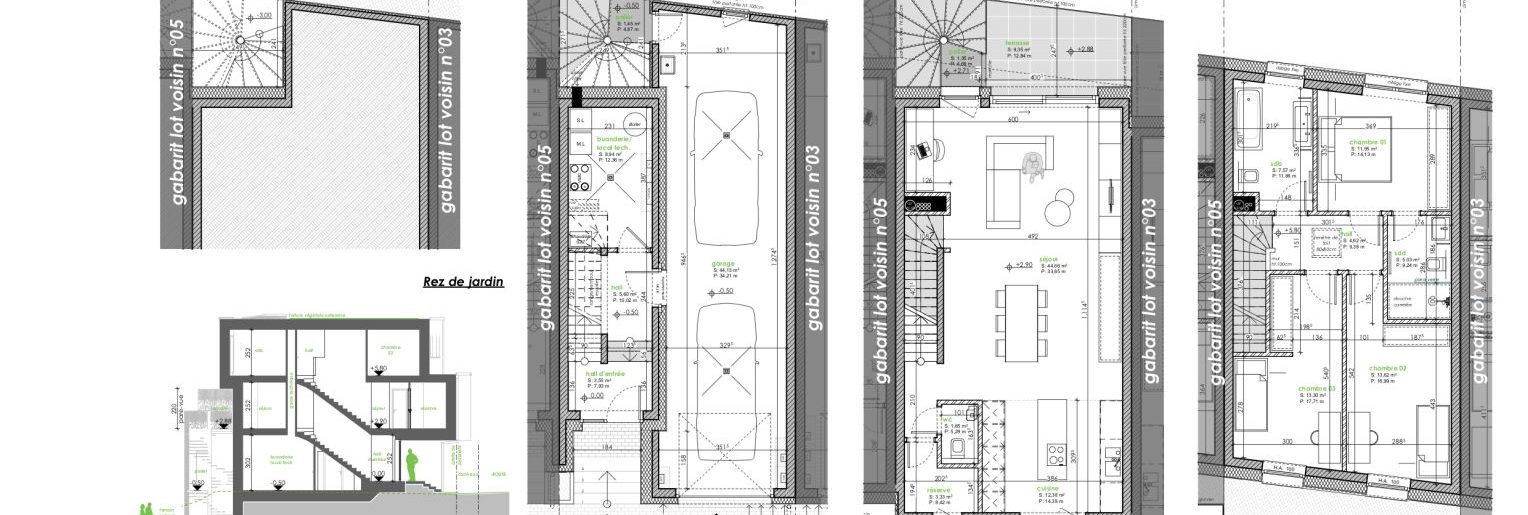
Maison unifamiliale en bande de +/-138 m2 surface habitable sur un terrain de 3,22 ares. Elle est composée comme suit: – au rez-de-chaussée: d’un garage pour 2 voitures, un hall d’entrée, buanderie / local technique– 1er étage: cuisine ouverte, une réserve, WC séparé et un grand living avec accès sur la terrasse– 2ème étage: trois … Continue reading Lotissement “rue WENKEL”
Copy and paste this URL into your WordPress site to embed
Copy and paste this code into your site to embed